拿地近2年了(24.1),海淀这个项目终于披露了项目规划。
据北京市规自委网站,近期《北京市海淀区学院路北端A、B、C、J地块B4综合性商业金融服务业用地、B23研发设计用地项目规划方案》进入公示期。
公示信息披露:
项目位于北京市海淀区,东至学清路,南至月泉路,西至双清路,北至双学路。项目拟建设内容为商业、办公、科研设计用房、地下车库、配套设施用房(商业)等。
项目总建筑面积458457.76平方米,其中地上建筑面积285522.89平方米,地下建筑面积172934.87平方米,建筑层数为地上17层(最高),地下3层,地上建筑高度为80.0米(最高),绿地率33.12%。
地块用途方面:
A地块,为B4综合性商业金融业服务业用地,规划用地面积:25612.778平方米;

B、C地块、J地块为B23研发设计用地。规划用地面积分别为:16000平方米、14800平方米、14188.287平方米
总计70601.065平方米。

A地块总建筑面积187529.86平方米,其中地上建筑面积128063.89平方米,地下建筑面积59465.97平方米,容积率为5.0。
B、C地块规划指标统筹核算。
B、C地块总建筑面积197367.77平方米,其中地上建筑面积107800.00平方米,地下建筑面积89567.77平方米(含R-1地下室面积),容积率为3.5。

J地块总建筑面积73560.13平方米,其中地上建筑面积49659.00平方米,地下建筑面积23901.13平方米,容积率为3.5。
该项目建设单位为腾讯科技(北京)有限公司,设计单位为德国gmp国际建筑设计有限公司、北京市建筑设计研究院股份有限公司。
根据信息披露,这宗组团地块就是2024年1月由腾讯以64.2亿元底价所摘得的商业地块。
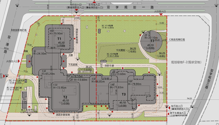
根据设计规划,A地块为独立规划地块。B、C地块则连接成一处整体的建筑。建筑由多个楼群组成,呈L型排列布局。该地块北侧即为A地块。
三个地块合计组成了T1-T7,一共7个单元,楼层从12-16F不等。错落排列。
J地块在该等地块西南侧,由2个楼栋组成,设计高度74.9m,设计层高14F,两个楼栋通过连廊连接。
值得注意的是,该组团地块的命运和海淀嘉华天珺一样,也是曾经经历过拿地、退地的故事。
2019年12月,紫光集团联合体以66.09亿元摘的海淀学院路北侧ABCJ地块,此后紫光股份公告称,该地块拟建设紫光全球智能科创总部,未来将成为紫光的全球总部及人工智能、集成电路、云计算和大数据等的研发中心。
然而数月之后,北京规自委披露,紫光集团联合体逾期缴纳土地出让相关费用超过90日。
经过数年沉寂,该地块最终在2024年1月再次完成出让,由腾讯以64.2亿元低价摘的。彼时有媒体报道称,腾讯方面表示,本次交易将主要用于满足公司对办公用地的需求,为公司员工提供稳定集中的办公场所。
地块成交21个月之后,终于又有了新进展。
不过该项目并非腾讯在北京的首个“总部”。早在数年前,腾讯就曾摘的海淀区西北旺一宗地块建设北京总部,该项目名为腾讯北京总部大楼,项目2019年1月军工,并于当年3月逐步安排员工进驻办公。
腾讯北京总部大楼占地面积77525平方米,总建筑面积334043平方米,地上建筑面积158640平方米,地下建筑面积175403平方米。
